Entrez la valeur de mesure consécutive à l'impression d'une mire et la mesure des points de mesure à l'échelle.
Comme vous pouvez régler la position des deux faces en entrant seulement les valeurs de mesure, ce réglage est utile pour l'impression recto-verso avec un nouveau type de papier ou lorsque l'erreur d'alignement entre les deux faces est inconnue après changement du papier dans le magasin.
Appuyez sur [Recto-verso] sur l'[MACHINE].
Sélectionnez le magasin pour lequel les réglages papier ont été définis.
Appuyez sur [Recto], puis sur [Mire réglage].
Appuyez sur [Impression].
Appuyez sur Départ sur le panneau de contrôle.
La mire de test est imprimée.
Appuyez sur [Retour réglage].
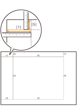
Mesurez la longueur de ligne de tous les points [1] à [8] dans la mire imprimée.
La figure donne l'exemple de mesure des points [1] et [5].
Vous pouvez entrer une valeur par incréments de 0,1 mm.
Notez bien les longueurs de mesure.
Appuyez sur le numéro de chaque point et utilisez le pavé numérique de l'écran tactile ou [
][
] pour entrer la longueur mesurée.
Appuyez sur [Effacer] pour réinitialiser la valeur.
Pour lancer le réglage, appuyez sur [Réglage Départ].
A l'étape suivante, réglez le verso.
Appuyez sur [Verso], puis sur [Mire réglage].
Appuyez sur [Impression].

Appuyez sur Départ sur le panneau de contrôle.
La mire de test est imprimée.
Le repère
est imprimé au [recto] <Recto> pour vous permettre de reconnaître quel magasin imprime la mire. Pour en savoir plus, voir Mire.
Appuyez sur [Retour réglage].
Mesurez le défaut d'alignement entre
de [1] à [4] au [verso] <Verso> et
au [recto] <Recto> de la mire imprimée.
La figure montre un exemple de mesure du point [1]. La résolution à l'échelle est de 0,5 mm.
Le signe
noir dans la figure indique le recto et le signe
bleu indique le verso.
Mesurez les coordonnées X et Y pour vérifier le défaut d'alignement de la position d'impression.
Vous pouvez entrer une valeur par incréments de 0,1 mm.
Notez bien les valeurs de mesure.
Par exemple, quand le signe
du point [1] est décalé de 2,0 mm vers la gauche (valeur positive de l'axe des X) et de 1,5 mm vers le bas (valeur négative de l'axe des Y) comme illustré dans la figure, appuyez successivement sur [2][0][+/-] et entrez -2,0 pour corriger et déplace vers la droite (valeur négative de l'axe des X) la ligne bleue au verso de 2,0 mm sur l'axe des X. Appuyez également successivement sur [1][5] et entrez +1,5 pour corriger et déplacer vers le haut (valeur positive de l'axe des Y) de 1,5 mm sur l'axe des Y.
Appuyez sur [X] ou [Y] de chaque point et utilisez le clavier de l'écran tactile ou [
][
] pour entrer la valeur de mesure.
Si la position d'impression est décalée vers la droite ou vers le bas (valeur négative), entrez une valeur positive. En cas de décalage vers la gauche ou vers le haut (valeur positive), entrez une valeur négative.
Utilisez les touches [+/-] pour spécifier une valeur positive ou négative.
Appuyez sur [Effacer] pour réinitialiser la valeur.

Pour lancer le réglage, appuyez sur [Réglage Départ].
Appuyez sur [Fermer].
L'exécution de la [Mire réglage] est terminée.
Pour un réglage fin, effectuez Taux restitution/Décalage image.