Entrez la valeur de mesure consécutive à l'impression d'une mire et la mesure des points de mesure à l'échelle.
Comme vous pouvez régler la position des deux faces en entrant seulement les valeurs de mesure, ce réglage est utile pour l'impression recto-verso avec un nouveau type de papier ou lorsque l'erreur d'alignement entre les deux faces est inconnue après changement du papier dans le magasin.
Appuyez sur Recto-verso sur l'UNITÉ PRINC.
Sélectionnez le magasin pour lequel les réglages papier ont été définis.
Appuyez sur Recto, puis sur Mire réglage.
Appuyez sur Impression.
Appuyez sur Départ sur le panneau de contrôle.
La mire de test est imprimée.
Appuyez sur Retour réglage.
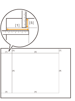
Mesurez la longueur de ligne de tous les points [1] à [8] dans la mire imprimée.
Explication supplémentaireLa figure donne l'exemple de mesure des points [1] et [5].
Explication supplémentaireVous pouvez entrer une valeur par incréments de 0,1 mm.
Explication supplémentaireNotez bien les longueurs de mesure.

Appuyez sur le numéro de chaque point et entrez la longueur mesurée au clavier de l'écran tactile ou avec les touches downup.
Explication supplémentaireAppuyez sur Effacer pour réinitialiser la valeur.
Pour lancer le réglage, appuyez sur Réglage Départ.
Explication supplémentaireA l'étape suivante, réglez le verso.
Appuyez sur Verso, puis sur Mire réglage.
Appuyez sur Impression.

Appuyez sur Départ sur le panneau de contrôle.
La mire de test est imprimée.
Explication supplémentaire
Le repère est imprimé au recto <Recto> pour vous permettre de reconnaître quel magasin imprime la mire. Pour des détails, voirMire.
Appuyez sur Retour réglage.
Mesurez le défaut d'alignement entre
de [1] à [4] au verso <verso> et
au recto <recto> de la mire imprimée.
Explication supplémentaireLa figure montre un exemple de mesure du point [1]. La résolution à l'échelle est de 0,5 mm.
Explication supplémentaireLe signe
noir dans la figure indique le recto et le signe
bleu indique le verso.
Explication supplémentaireMesurez les coordonnées X et Y pour vérifier le défaut d'alignement de la position d'impression.
Explication supplémentaireVous pouvez entrer une valeur par incréments de 0,1 mm.
Explication supplémentaireNotez bien les valeurs de mesure.
Explication supplémentairePar exemple, quand le signe
du point [1] est décalé de 2,0 mm vers la gauche (valeur positive de l'axe des X) et de 1,5 mm vers le bas (valeur négative de l'axe des Y) comme illustré dans la figure, appuyez successivement sur 20+/- et entrez -2,0 pour corriger et déplacer de 2,0 mm vers la droite (valeur négative de l'axe des X) la ligne bleue au verso. Appuyez également successivement sur 15 et entrez +1,5 pour corriger et déplacer vers le haut (valeur positive de l'axe des Y) de 1,5 mm sur l'axe des Y.

Appuyez sur X ou sur Y de chaque point et entrez la valeur de mesure au clavier de l'écran tactile ou avec les touches downup.
Explication supplémentaireSi la position d'impression est décalée vers la droite ou vers le bas (valeur négative), entrez une valeur positive. En cas de décalage vers la gauche ou vers le haut (valeur positive), entrez une valeur négative.
Explication supplémentaireUtilisez les touches +/- pour spécifier une valeur positive ou négative.
Explication supplémentaireAppuyez sur Effacer pour réinitialiser la valeur.

Pour lancer le réglage, appuyez sur Réglage Départ.
Appuyez sur Fermer.
L'exécution de la Mire réglage est terminée.
Explication supplémentairePour un réglage fin, effectuez Réglage taux [Taux restitution]/[décalage image].